Podpisano porozumienie o współpracy z KSSE
14 lutego w siedzibie podstrefy Katowickiej Specjalnej Strefy Ekonomicznej w Żorach prezydent Mieczysław Kieca podpisał porozumienie ze wspomnianą organizacją o współpracy w celu aktywizacji gospodarczej Wodzisławia Śląskiego.
Wczoraj, tj. 14 lutego br. podpisano porozumienie pomiędzy miastem Wodzisławiem Śląskim a Katowicką Specjalną Strefą Ekonomiczną. Spotkanie pomiędzy prezydentem Mieczysławem Kiecą a przedstawicielami KSSE – prezesem zarządu Januszem Michałkiem oraz wiceprezesem i członkiem zarządu Andrzejem Zabieglińskim odbyło się w siedzibie podstrefy KSSE w Żorach.
Porozumienie z KSSE
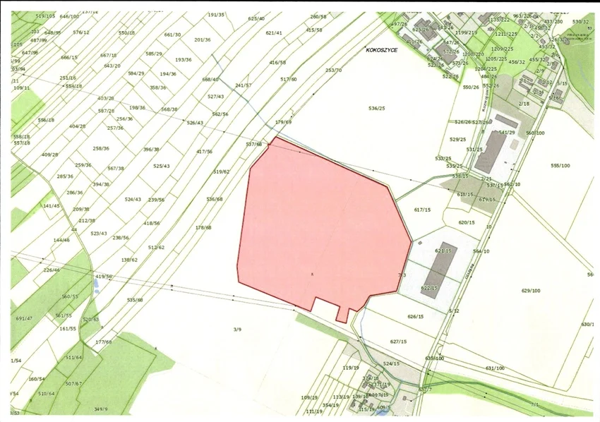
W ramach porozumienia strony zobowiązały się do współpracy w zakresie aktywizacji gospodarczej terenów inwestycyjnych położonych w granicach administracyjnych miasta Wodzisławia Śląskiego, objętych statusem specjalnej strefy ekonomicznej i położonych w strefie inwestycyjnej „Olszyny” o powierzchni ok. 21,5 ha.
Miasto zobowiązało się do podjęcia działań, zmierzających do budowy drogi komunikującej określony obszar, jako podstawowy cel przedsięwzięcia, natomiast Katowicka Specjalna Strefa Ekonomiczna zapewni wykonanie podziału geodezyjnego części działki nr 3/9. Projekt podziału ma uwzględniać obszary inwestycyjne oraz ślad pod budowę drogi.















Dodaj komentarz